深圳裝修設計馬思每一寸的設計,都經過精心的思考。

為什么說懂生活,從懂酒店開始?
“當酒店提供更多超越驛站角色的生活體驗時,
一種酒店的生活文化就有了足夠的養分生根發芽。”
「酒店=家+美食街+溫泉山莊+運動天地+風景區+休閑區+個人舒適圈」



杭州法云安縵酒店
古代有客棧,因為當時人們遠行主要是靠步行或是乘馬車,因此,客棧主要出現于道路或驛站旁。初時,客棧只供應基本的食宿,讓旅客可以有落腳的地點,并沒有提供消遣服務。
民國時期,開始出現某某大飯店,這個時候的飯店開始有餐廳,咖啡廳,酒吧的加入,變得豐富多彩,除了居住開始出現了消遣享受的一方天地,同期也還有旅館等簡單居住的地方。
到近代,出現各類酒店,開始分星級,劃分一旦分明,就開始出現了更多值得駐留的優勢,甚至在酒店就可以度假——游泳池、健身房、桑拿房、溫泉、各國餐廳、按摩、電影院...吃喝玩樂一體化,單在一個酒店就能享受超越住宅的商業全景。
每天還有客房服務固定整理住所,不單單如此,房間里也開始有客廳、衣帽間、臥室、書房等類似家的細化分布,是獨處時溫馨治愈的好空間。
所以,懂生活,從懂酒店開始。


倫敦EDITION酒店
現在越來越多的世界酒店集團都在打造自身特色及生活方式的酒店品牌。
比如:安縵酒店,契合本地文化的美學,從中凝練出至美的居住體驗,著力于營造出一種平和,寧靜,家的感覺,給人一種舒適的安定感。
比如:萬豪酒店集團旗下的W酒店,主張時尚潮流、大膽創新、活力張揚且不失奢華,讓人感到年輕富有朝氣的心態。不僅是視覺上的享受,還是心靈上的享受。
又比如:最近澳門新開的卡爾拉格斐奢華酒店,其強烈的東西方古典文化碰撞,打破常規但又恰到好處的空間處理方式,不動聲色地影響著行業以及所涉及到的人。
所以,懂生活,就從懂酒店開始。


澳門卡爾拉格斐奢華酒店
好的酒店不僅僅想讓你去住店,還想影響你的生活方式,讓你可以保持對生活的新鮮感、保持對生活的熱情和對生活的儀式感。
讓你即使不在酒店住宿,也擺脫不了它的影響,酒店也成為了某種生活方式的策源地。讓你對生活品質有追求,會享受生活的小美好,對人生目標的追求有動力。
所以,懂生活,就從懂酒店開始。


南京蘇寧鐘山高爾夫國際酒店
「酒店是為商業運營服務的 ,一個好的總體規劃設計是酒店產業中的增值環節 ,是設計師專業度、審美度、前瞻性等能力的體現。」
設計師在設計時需要通盤兼顧。設計和裝修中的每一分錢,是要為了更好的服務顧客和從市場獲利的角度考慮。
在室內設計方面,設計師不僅要讓設計符合大部分人的基本要求和日常習慣,還要考慮到設計和裝修元素及細節哪些更有利于酒店未來的市場經營。因為好的設計將帶來的可能是數十倍,百倍的效益和回報。
越高端的酒店越是需要體現設計的價值,體現品牌差異化,體現酒店品質,從而提高客戶體驗。所以,這就是酒店為什么一定要找專業酒店設計公司設計的原因。
閱讀進度:30% 后面內容更豐富呦~


美國費城四季酒店
一個好的室內設計是可以讓生活更美好的,潛移默化影響我們的心理感覺、情緒、動作、行為。因為設計可以體現獨特個性化,體現設計審美,以滿足人們日益增長的物質文明和精神文明的需求。


成都不大酒店
為什么有些家裝
住了一兩年就住不下去了?
業主與設計師對美的看法不一樣,對設計師專業能力的不信任。只基于眼前的認知,去規劃滿足未來生活的空間,從而決定審美的上限,設計師則控制審美的下限。
設計師不專業,思維認知淺薄,僅以自己或周圍人的需求、行為和技能為參照。而這往往會是悲劇。
認知深淺決定了居住舒適的“保質期”能有多久。要延長居住空間的“保質期”,就要對"人"的居住需求有清晰認識。


美國波特蘭AC酒店
設計師的認知,
決定了設計思維的底層邏輯。
設計思維的底層邏輯是思考,設計思維不僅僅是設計師才具備的一種思維方式,而是一種站在問題的前瞻性和實用性兩個維度建立問題思考的一種思維模型。
在思考的過程中,利用大量的實踐認知到事物本質規律,然后利用理性思維來解決問題,這就是設計思維的內涵,所以設計思維的第一性原理,就是系統化解決問題的能力。
對此,在選擇設計師時,對設計師的專業能力、專業素養及設計管理統籌整合能力(設計統合能力)都要進行綜合考慮。
閱讀進度:75% 別走!后面內容更精彩呦

塞內卡尼亞加拉酒店

香港四季酒店
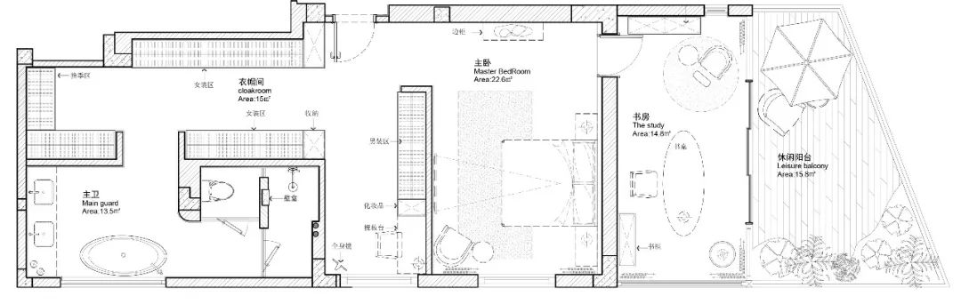
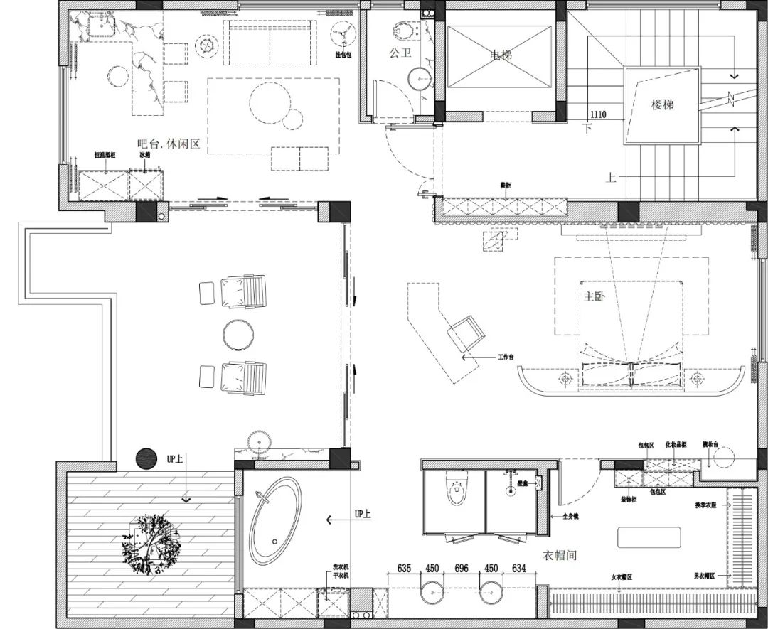
從上圖可見,這是酒店常見的布局,它會在有限的空間內融入多種功能。近年來,家裝設計也進行了細化分布。
「 但有些業主會跟設計師說:
不希望自己的家太酒店化,
酒店那種環境不適合過日子。
其實這個想法是不對的。」
首先,酒店在設計方面一定是把它當作大事來抓的,酒店對美學、功能及舒適性要是做到極致的。如果設計做不好,哪怕是后期聘請管理者有“三頭六臂”也很難把酒店經營好。
其次,業主會有這樣的問題,可能是這個設計超越了業主的認知,也可能是這個空間內沒有自己喜愛或熟悉的物件,沒有生活氣息,缺少了溫度,從而沒有讓人與空間產生情感上的連接,最終導致沒有歸屬感。
想想我們每逢過年回家,路途經過的胡同小道村中老樹,小時經常去買零食的小賣部,在村口坐著聊天曬太陽的老人家們。這一切的一切,都是讓我們產生了歸屬感的根源,因為這里有著我們熟悉且珍藏在記憶里的美好事物。
當我們擁有歸屬感的時候就會感到安全、溫暖、依賴。

所以,
不是酒店不適合居住,
是你沒有找到歸屬感。
我們不能否定酒店的設計美感
以及它對舒適性功能性的極致追求。
所以,
不是酒店設計不適合家居,
它一樣適用于家居。
當家居里有可讓你與空間產生連接的事物時,
產生歸屬感,
加上酒店那種極致的
設計美感 · 舒適性 · 功能性
那么在這個空間里,
你會感到非常舒適。
閱讀進度:90% 離結尾不遠啦

▲ 馬思案例

▲ 馬思案例

▲ 馬思案例
深圳裝修設計家裝設計在進行細化分布時,不是把酒店的設計照搬過去,而是從中提取好的方面運用到家裝設計里,同時針對業主的需求和習慣,進行個性化設計。
這不僅提高了房間的利用率,還能給到業主獨一無二的專屬空間,讓家居氛圍沒了類似刻板和約束,并且不失溫馨,提升了家中的舒適感和體驗感。
美不在于形,在于無形。感官感受,情緒與行為觸發,才是室內設計研究的核心,沉浸式體驗來自我們的感官調動式設計。

▲ 馬思案例

▲ 馬思案例

▲ 馬思案例
夜晚時分,忙碌了一整天的夫妻倆帶著疲憊的身軀回到了獨屬于他們自己的私人空間。在這里,為他們閑聊,玩游戲,工作或者一個人獨處都提供了足夠的空間。
臨睡前,床頭開一盞小燈,手捧一本愛書,喝上一口溫熱水,身邊還躺著自己的愛人,看外面是點點星空,里面則是幸福的生活點滴,溫馨而安逸,安全且愜意,如此便好。

▲ 馬思案例

▲ 馬思案例

▲ 馬思案例
佛山公司辦公樓 ADD:佛山市南海桂城簡平路天安南海數碼城5期A座802A
TEL:0757-82065336 QQ: 807732381
MOB:138 2772 8889(謝生) E-mail:807732381@qq.com
湖北公司辦公樓 ADD:湖北省襄陽市樊城區長虹北路與鄧城大道交匯處(居然之家五樓)
TEL:159 9724 5035(王先生) E-mail:284365883@qq.com
珠海公辦公樓 ADD:珠海市香洲區梅華東路6號城市東岸10棟底商302
TEL:133 2661 8866(王晶晶) E-mail:251961011@qq.com